|
 根據類型分類 |
|
|
|
|
網頁位置:首頁>>聯軸器>>彈性聯軸器>>膜盤聯軸器>>高速膜盤聯軸器
TARR系列膜盤聯軸器

★膜盤聯軸器基本形式,重量輕,傳遞扭矩大,結構簡單,拆裝方便,如軸間距小,建議選用TARS系列
★中間膜盤組件整體組裝出廠,安裝方便,動平衡特性高,是各流程動力設備的首選;
★角向補償0.25°,可滿足一般設備的要求;驅動螺栓采用高強度合金鋼,頭部采用12角頭法蘭面螺栓,螺栓強度和壽命高。
★設有調整墊片,方便現場安裝和調節距離。
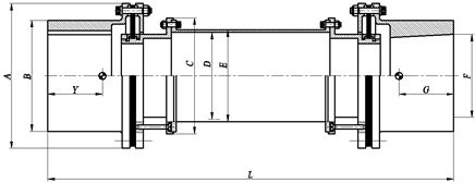
主要尺寸和性能技術數據表
型號 |
公稱扭矩
(kNm) |
峰值扭矩
(kNm) |
最大許用轉速 |
A
(mm) |
B
(mm) |
C
(mm) |
D
(mm) |
E
(mm) |
F
(mm) |
L
標準值(mm) |
TARR150 |
6.5 |
9.6 |
32000 |
150 |
115 |
127 |
88 |
93 |
82 |
580 |
TARR180 |
10.5 |
15.8 |
25000 |
180 |
140 |
150 |
112 |
117 |
92.5 |
610 |
TARR230 |
19.6 |
30.5 |
20000 |
230 |
185 |
175 |
130 |
136 |
127 |
670 |
TARR280 |
37.5 |
56 |
18000 |
280 |
215 |
227 |
172 |
180 |
152 |
700 |
TARR330 |
72.3 |
108.4 |
15000 |
330 |
270 |
277 |
203 |
214 |
190 |
765 |
TARR380 |
101.7 |
152.5 |
12000 |
380 |
307 |
306 |
232 |
245 |
215 |
765 |
TARR430 |
158.2 |
238.3 |
10000 |
430 |
355 |
350 |
270 |
285 |
254 |
825 |
TARR560 |
452 |
1016 |
6000 |
560 |
480 |
505 |
304.8 |
340 |
343 |
1150 |
型號 |
擰緊力矩(Nm) |
總質量
(Kg) |
扭轉剛度KT |
轉動慣量
(Kgm^2) |
中間節每米長 |
角向不對中 |
軸向不對中 |
質量
(Kg) |
扭轉剛度
ΔKT(Nm
/radxE+06) |
轉動慣量
(Kgm^2) |
最大
θmax
(deg) |
角向剛度Kθ
|
最大(mm) |
軸向力
(N) |
TARR150 |
15 |
13.62 |
0.18 |
0.027 |
5.3 |
115.82 |
0.0115 |
0.25o |
0.73 |
1.35 |
498.3 |
TARR180 |
30 |
20.5 |
0.36 |
0.054 |
7.2 |
213.32 |
0.023 |
0.25o |
1.75 |
2 |
856.6 |
TARR230 |
45 |
42.85 |
0.91 |
0.192 |
12.8 |
532.25 |
0.058 |
0.25o |
3.93 |
2.5 |
1573.1 |
TARR280 |
120 |
70.7 |
1.94 |
0.496 |
18.5 |
1456.11 |
0.138 |
0.25o |
9.71 |
3 |
2754.3 |
TARR330 |
120 |
119.7 |
3.86 |
1.159 |
30.2 |
3273.3 |
0.325 |
0.25o |
15.32 |
3.5 |
3756.9 |
TARR380 |
160 |
149.3 |
6.09 |
2.12 |
39.5 |
5866.7 |
0.514 |
0.25o |
19.56 |
3.5 |
4267.7 |
TARR430 |
160 |
223.9 |
10.54 |
3.54 |
55.35 |
10265.2 |
1.039 |
0.25o |
31.75 |
3.5 |
7556 |
TARR560 |
220 |
730.1 |
32.9 |
24.12 |
143.2 |
37652.9 |
3.63 |
0.25o |
79.81 |
3.5 |
12940.6 |
◆聯軸器長度L是根據使用性能推薦的標準值,可按用戶要求設計。其它尺寸的L值,其扭轉剛度、轉動慣量等應另算;
◆徑向不對中數值是角向不對中和中間節長度的函數,可近似按正切函數推倒;
◆對于有熱膨脹的機組,安裝時應考慮冷態預拉伸量,使撓性元件工作在較小的變形區間,提高使用壽命;
◆有任何疑問和其它需求,歡迎向天碩銷售工程師咨詢。
|